Ultimate Oceanfront Luxury-Private penthouse in South Maui-Perfect for families | Condo in Kihei

5 Bedroom Condo in Kihei
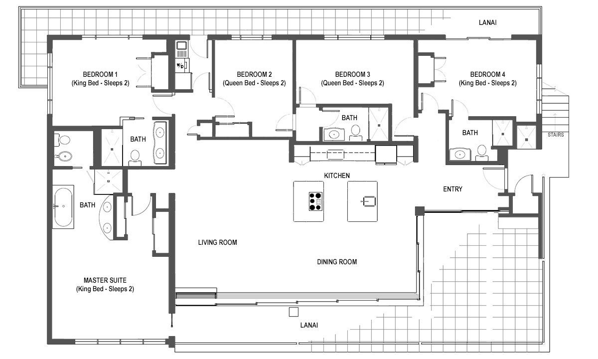
The Penthouse Maui, our luxurious 2,824-square-foot vacation rental, sits directly above the golden sand and shimmering surf of Kamaole Beach II in the heart of sunny Kihei, Hawaii. Whether you’re celebrating with family, vacationing with friends, or simply seeking a peaceful and private alternative to a high-end hotel, The Penthouse Maui is an ideal home base for your tropical getaway.
Among the amenities you’ll enjoy:
- Direct beach access
- Expansive furnished ocean-view lanai
- 60-foot-long retractable glass wall
- Central A/C with individual climate controls
- High-speed wireless internet
- Private outdoor electric barbecue grill
- Kayaks, boogie boards, stand-up paddle board, and other beach supplies
Our penthouse sleeps up to 10 people. Five well-appointed bedrooms with luxurious linens, high-definition smart TVs, and ample storage ensure that everyone has their own quiet, personal space. The three king bedrooms have en suite bathrooms, while two queen bedrooms share a full bath.
The gourmet chef’s kitchen has everything you need for easy entertaining, including two full-size refrigerators, a dedicated ice maker, and plenty of counter space. At mealtimes, gather in the ocean-view dining area; the 10-seat dining table has enough room for everyone.
The Penthouse Maui offers peace and privacy without sacrificing convenience. In addition to sitting right on the beach in Kihei — Maui’s most popular area for swimming, surfing, snorkeling, and paddle boarding — our penthouse's central location offers easy access to a variety of island experiences, and several popular restaurants and shops are just a short walk away.
Driving distance to popular Maui attractions:
- Kahului airport: 25 minutes
- The Shops at Wailea: 5 minutes
- Wailea Golf Club: 10 minutes
- Maalaea Harbor - Maui Ocean Center - 20 minutes
- Haleakala National Park: 1.5 hours
- Hana: 2.5 hours
Ready to get away from it all? Look no further than The Penthouse Maui for your exclusive Hawaiian escape.
Ultimate Oceanfront Luxury-Private penthouse in South Maui-Perfect for families is located in Kihei. Ultimate Oceanfront Luxury-Private penthouse in South Maui-Perfect for families provides accommodation, featuring Laundry, Ocean View, Balcony/Terrace, among other amenities. This Condo features Laundry, Ocean View, Balcony/Terrace, to make your stay a comfortable one.
Ultimate Oceanfront Luxury-Private penthouse in South Maui-Perfect for families has 5 Bedrooms , 4 Bathrooms, and max occupancy of 10 people. The minimum rental for this property is 1 nights, but this can change depending on the season you plan on staying. Previous guests have given good rated it, and VRBO labeled it a top-rated Condo because of the excellent services rendered by the owner or manager of this Condo, and has consistently provided great experiences for their guests. Most families or guests that use it recommend it to their friends and some of them are repeat guests. Condo has a friendly neighborhood, and the Kihei has interesting places to visit. If you want to learn more about the Condo in Kihei, such as places to visit and things to do nearby, you can check below to learn more.
Amenities
Policies
Extra-person charges may apply and vary depending on property policy government-issued photo identification and a credit card, debit card, or cash deposit may be required at check-in for incidental charges host has indicated there is a carbon monoxide detector on the property host has indicated there is a smoke detector on the property note from host: no large gatherings are allowed. onsite parties or group events are strictly prohibited property registration number 390050060049, ta-167-911-4240-01, ge-167-911-4240-01 safety features at this property include a fire extinguisher and a first aid kit special requests are subject to availability upon check-in and may incur additional charges; special requests cannot be guaranteed this property has outdoor spaces, such as balconies, patios, terraces which may not be suitable for children; if you have concerns, we recommend contacting the property prior to your arrival to confirm they can accommodate you in a suitable room this property is managed through our partner, vrbo. you will receive an email from vrbo with a link to a vrbo account, where you can change or cancel your reservation